SERVIS VESELÝ s.r.o.
Servis strojního zařízení
Program mobilních betonáren
Kovovýroba
Úvod
O nás
Naše služby
Program mobilních betonáren
Bazar
Galerie
Kontakt
Fotogalerie
V galerii naleznete ukázky realizovaných zakázek z oblasti kovovýroby, fotografie a nákresy mobilních betonáren atd.
Zobrazit komentář
Zvětšit
Zvětšit
výroba nástavby na APE50
Zvětšit
výroba nástavby na APE50
Zvětšit
úprava APE50
Zvětšit
oprava demprového kontejneru
Zvětšit
přenosný stojan na pytle
Zvětšit
mobilní betonárna
Zvětšit
mobilní betonárna
Zvětšit
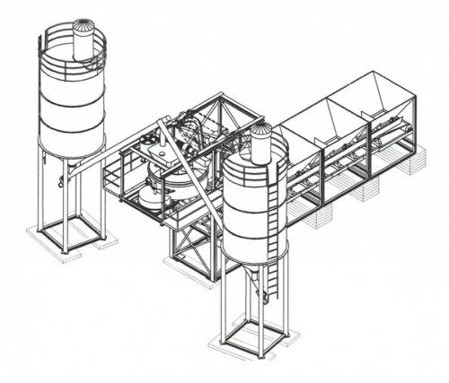
Nákres mobilní betonárny
Zvětšit
Nákres mobilní betonárny
Zvětšit
výměna míchacího jádra betonárny
Zvětšit
Zvětšit
firemní vozidlo
Zvětšit
oprava kontejneru
Zvětšit
oprava kontejneru
Zvětšit
oprava lžíce nakladače
Zvětšit
oprava sněhové radlice pro smykový nakladač
Zvětšit
oprava svahové lžíce
Zvětšit
pomocná výpust pro betonárnu
Zvětšit
dávkovač písku do mixu
Zvětšit
rekonstrukce hasického žebříku
Zvětšit
výměna vnějšího obložení míchačky
Servis Veselý s.r.o. © 2011 | Developed by
Kinet